Akitakata City Akiya Bank rental home

rental home in Akitakata, Hiroshima | 3LDK | ¥49,000/month

rental home in Akitakata, Hiroshima. asking ¥49,000/month. 3LDK layout. built 1980-01-01T00:00:00.000Z. Flood hazard. Explore map search, AI search, subsidies,…

Source title: 安芸高田市 吉田町常友

Updated March 29, 2026 Akitakata, Hiroshima
¥49,000/month
Price
¥49,000/month
Category
rental home
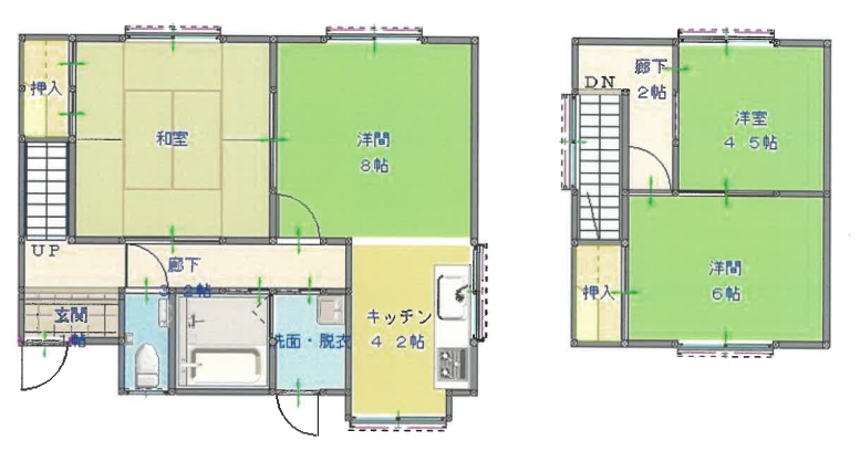
Floor plan
3LDK
Year built
1980-01-01T00:00:00.000Z

Local market context

Akiyama currently tracks 78 listings in Akitakata. The median rent is ¥50,000/month. Inside the rentals slice, 8 listings are currently visible and the median is ¥50,000/month.

Across this municipality, 0 listings carry subsidy signals, 18 carry hazard flags, and 78 were seen again in the last 7 days.

  • Municipality listings78
  • rentals listings8
  • Subsidy signals0
  • Hazard flags18

Overview

  • Address広島県安芸高田市吉田町常友
  • PrefectureHiroshima
  • CityAkitakata
  • SourceAkitakata City Akiya Bank
  • Page updatedMarch 29, 2026

Listing freshness

Source-native timestamps and Akiyama crawl timestamps are shown separately.

  • First seen by AkiyamaMarch 13, 2026
  • Last seen by AkiyamaMarch 29, 2026

Utilities & infrastructure

  • GasPropane gas
  • WaterMunicipal service

Akiyama data

  • Flood hazardFlagged
  • GasPropane gas
  • WaterMunicipal service

Source description

種別: 賃貸 交通: 広島市まで車で約1時間20分 [object Object],[object Object],[object Object],[object Object],[object Object],[object Object],[object Object] 修理不要(必要な場合、貸主負担) 敷金98,000円 礼金49,000円 保証会社利用必要(全保連株式会社1ヵ月分)

Related listings

rental home in Akitakata, Hiroshima | ¥50,000/month | 3DK | Flood haz…
rental home in Akitakata, Hiroshima | ¥50,000/month | 3DK | Flood haz…
¥50,000/month
Akitakata, Hiroshima
rental home in Akitakata, Hiroshima. asking ¥50,000/month. 3DK layout. built 1988-01-01T00:00:00.000Z. Flood hazard. Parking: 有. Explore map search, AI search,…
rental home in Akitakata, Hiroshima | ¥50,000/month | 3LDK | Flood ha…
rental home in Akitakata, Hiroshima | ¥50,000/month | 3LDK | Flood ha…
¥50,000/month
Akitakata, Hiroshima
rental home in Akitakata, Hiroshima. asking ¥50,000/month. 3LDK layout. built 1989-01-01T00:00:00.000Z. Flood hazard. Parking: 有り. Explore map search, AI searc…
rental home in 廿日市, Hiroshima | ¥50,000/month | 5DK | Steep-slope haz…
rental home in 廿日市, Hiroshima | ¥50,000/month | 5DK | Steep-slope haz…
¥50,000/month
廿日市, Hiroshima
rental home in 廿日市, Hiroshima. asking ¥50,000/month. 5DK layout. built 1992-04-01T00:00:00.000Z. Steep-slope hazard. Parking: 有り. Explore map search, AI search…
rental home in Higashihiroshima, Hiroshima | ¥50,000/month | 5DK | Pa…
rental home in Higashihiroshima, Hiroshima | ¥50,000/month | 5DK | Pa…
¥50,000/month
Higashihiroshima, Hiroshima
rental home in Higashihiroshima, Hiroshima. asking ¥50,000/month. 5DK layout. built 1932-04-01T00:00:00.000Z. Parking: 有り. Explore map search, AI search, subsi…
rental home in Miyoshi, Hiroshima | ¥45,000/month | 7DK | Parking: 有り…
rental home in Miyoshi, Hiroshima | ¥45,000/month | 7DK | Parking: 有り…
¥45,000/month
Miyoshi, Hiroshima
rental home in Miyoshi, Hiroshima. asking ¥45,000/month. 7DK layout. built 1964-01-01T00:00:00.000Z. Parking: 有り. Explore map search, AI search, subsidies, and…
rental home in Higashihiroshima, Hiroshima | ¥55,000/month | 7DK | Pa…
rental home in Higashihiroshima, Hiroshima | ¥55,000/month | 7DK | Pa…
¥55,000/month
Higashihiroshima, Hiroshima
rental home in Higashihiroshima, Hiroshima. asking ¥55,000/month. 7DK layout. built 1965-03-01T00:00:00.000Z. Parking: 有り. Explore map search, AI search, subsi…